73 Hughes Place DriveDawsonville, GA 30521
Due to the health concerns created by Coronavirus we are offering personal 1-1 online video walkthough tours where possible.




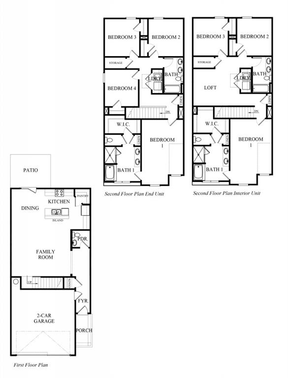
The new construction Sudbury plan at 73 Hughes Place Drive is a spacious two story town home END UNIT featuring 4 bedrooms, 2.5 bathrooms and 2 car garage in 1,877 square feet at the Dawsonville community, Hughes Court. Enjoy beautiful wooded views from your back patio. As you step off the front porch, a long foyer welcomes you and leads into the open concept main living area. A large family room is the perfect place for family and friends to gather or for a quiet night with a book or movie. The family room flows seamlessly into the well appointed kitchen with a center island, quartz counter tops, white subway tile back splash, beautiful white shaker-style cabinetry and stainless steel appliances. A dining area directly off the kitchen provides space for a dining table and opens onto the back patio. There is also a half bathroom tucked away on the first floor. Up the stairs, you'll turn from the landing into the primary suite. This spacious bedroom is complimented by the en suite bathroom featuring a separate tub and shower, dual vanity, water closet, linen closet and roomy walk-in closet. Across the landing is loft as secondary living space and 2 secondary bedrooms, the laundry closet and an additional bathroom with dual vanity rounding out the upper floor. Just minutes from Lake Lanier, homeowners can enjoy endless opportunities for outdoor recreation. With plenty of dining options, shopping centers and everyday conveniences nearby, Hughes Court offers a perfect balance of comfort and accessibility at 73 Hughes Place Drive.
| a month ago | Status changed to Pending | |
| a month ago | Listing updated with changes from the MLS® | |
| 2 months ago | Listing first seen on site |
Listings identified with the FMLS IDX logo come from FMLS and are held by brokerage firms other than the owner of this website and the listing brokerage is identified in any listing details. Information is deemed reliable but is not guaranteed. If you believe any FMLS listing contains material that infringes your copyrighted work, please click here to review our DMCA policy and learn how to submit a takedown request.
© 2017-2025 First Multiple Listing Service, Inc.
Did you know? You can invite friends and family to your search. They can join your search, rate and discuss listings with you.